
- 既製品以外の木製ドアの注文が来ると、お断りしている。
- 本当はお客様の要望に応えてオーダードアの注文を受けたいが、知識もないし打ち合わせができない。
- 木製ドアの作図や施工をお願いしたいが、信頼できる業者がいない。


弊社は「オーダードア」に特化した会社であり、設立以来60年以上にわたり木工製品の製作に携わり、木製建具の製作を33年以上行ってきた実績があります。
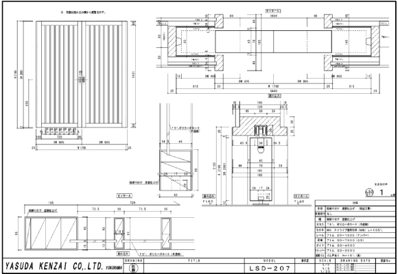
弊社では、製作工場から施工管理をされる方まで「わかりやすい製作図」をご提供いたしますので、施工全体を考えたご提案が可能になります。


弊社は「オーダードア」に特化した会社であり、設立以来60年以上にわたり木工製品の製作に携わり、木製建具の製作を33年以上行ってきた実績があります。
弊社では、製作工場から施工管理をされる方まで「わかりやすい製作図」をご提供いたしますので、施工全体を考えたご提案が可能になります。



安田建材株式会社はオーダードアの製作に特化し、33年以上に渡り多くの工務店様からご依頼を受けてきた信頼と実績があります。オーダードアのことはお任せください。

弊社では、「ドア枠との取り合い」などを含めた製作図をお作りいたしますので、施工全体を考えたご提案が可能です。



注文住宅でのフルオーダードアの施工・デザイナーズマンションの内装ドアの製作・学校や育児施設の内装ドアの製作・老健施設の多機能ユニバーサルドアの製作・新築/リフォーム/リノベーションなど、弊社はあらゆるご要望にお応する自信があります。


私たちは半世紀にわたり木の温かさが感じられる、住む人に優しい住宅建材を提供してまいりました。時代の変化に伴い人々の生活様式も多様化している現代においても、そのコンセプトは変わりません。
私たちは、住まいのノウハウが蓄積している集合住宅で培った高い技術力と豊富な経験を生かし、お客様のニーズにしっかりと応えられる提案型の企業を目指しています。また、設計・製作・施工・管理と、一貫したシステムを通してトータルコーディネートの考え方を大切にしています。
私たちはお客様との信頼を第一に考え、自由な発想を形に変え、きっと満足していただける心を込めたサービスを提供してまいります。



まずは、お申し込みフォームからお問い合わせください。お電話でのお問い合わせも承っておりますので、お気軽にお問い合わせください。
まずは、お申し込みフォームからお問い合わせください。お電話でのお問い合わせも承っておりますので、お気軽にお問い合わせください。
お問い合わせ後、担当者がご返信いたします。その際に、ヒアリング・打ち合わせをさせていただく日時のすり合わせをさせていただきます。
打ち合わせ時には、「仕様による金額のご相談」「施工でのご相談」「設計事務所様からの要望」」「お施主様からの要望」…などをヒアリングさせていただき、「より良いご提案」をさせていただきます。
お見積りにご納得いただき、オーダードアのご依頼をお受けしましたら、まずは製作図の作製に取り掛かります。製作図はおおよそ3週間ほどで完成しますので、完成後、製作図をご確認いただきます。
製作図をご確認いただき問題がなければ、すぐさまオーダードアの製作へと移ります。オーダードア製作の期間はおおよそ3週間ほどとなります。「製作図の作製」から「オーダードア完成」までは、合計で約6週間ほどとなります。ただし、ご要望や仕様によって日数は異なりますのでご了承願います。
オーダードアが完成したら、すぐにご連絡し、ドア取り付けの日程などを決めさせていただきます。その後、オーダードアの取り付けが完了しましたら納品完了となります。








